En Venta
VENTA DEPARTAMENTO UN DORMITORIO FRENTE VENTILACION CRUZADA LOURDES, RIOJA ENTRE RODRIGUEZ Y PUEYRREDON POZO
Código: 154548

Rioja 2500, S2000OJH Rosario, Santa Fe, Argentina, Rosario, Santa Fe, Argentina.

USD82.800

Departamento
Compartir esta Propiedad

Descripción de la Propiedad

A METROS DE BV. OROÑO, CERCA DE UNIVERSIDADES, SANATORIOS Y COMERCIOS DE TODOS LOS RUBROS, PERMITIENDO A QUIENES VIVAN ALLÍ TENER TODO AL ALCANCE DE LA MANO.

PENSADO Y DISEÑADO PARA ALQUILERES TEMPORARIOS, COMO ASÍ PARA ALQUILERES PERMANENTES.

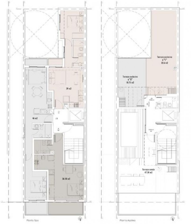
EDIFICIO DE PB Y SEIS PISOS CON AZOTEA. CADA PISO SE COMPONE DE DOS DEPARTAMENTOS DE UN DORMITORIO Y UN MONOAMBIENTE, TODOS CON SU BALCÓN CORRESPONDIENTE. LAS UNIDADES CUENTAN CON TERMINACIONES DE CALIDAD, ABERTURAS DE ALUMINIO TIPO MODENA, PERSIANAS EN DORMITORIO Y ESTAR COMEDOR. PISOS DE PORCELANATO SÍMIL MADERA. AMOBLAMIENTO DE COCINA COMPLETO. ANAFE A GAS, HORNO Y TERMOTANQUE ELÉCTRICOS. INSTALACIÓN PREVISTA PARA LAVARROPAS. PLACARES COMPLETOS CON FRENTE E INTERIOR. KITS DE PRE-INSTALACIÓN DE AIRES ACONDICIONADOS. CALEFACTOR INSTALADO EN LIVING COMEDOR EN UNIDAD DE UN DORMITORIO. POSIBILIDAD DE COMPRAR LA UNIDAD EQUIPADA EN SU TOTALIDAD APTA TEMPORARIO.

LA AZOTEA ESTÁ PENSADA PARA PODER GENERAR UN ESPACIO PERFECTO PARA EL DISFRUTE Y DESCANSO, CONTANDO CON PILETA, SOLÁRIUM Y PARRILLERO. A SU VEZ SE OFRECE LA OPORTUNIDAD EXCLUSIVA DE TERRAZAS PRIVADAS CON PARRILLERO, BRINDANDO A LOS INTERESADOS LA POSIBILIDAD DE SUMAR MÁS ESPACIO EXTERIOR A SU UNIDAD.

FORMAS DE PAGO

CONTADO CON UN DESCUENTO DEL 8%.
FINANCIADO: ENTREGA DEL 30% Y SALDO EN 24 CUOTAS EN PESOS AJUSTABLES A ICAC.

.

Mas detalles
  • Pileta
  • En construcción
  • Balcon
  • Parrilla
  • Terraza
  • Calefactor a gas
  • Asfalto
  • Agua Corriente
  • Cloacas
  • Electricidad
  • Red Gas Natural
  • Internet / Wifi
  • Preinstalación para A/A
  • Ascensor