En Venta
VENTA DEPARTAMENTO UN DORMITORIO FRENTE PRESIDENTE ROCA E ITUZAINGO
Código: 164791

Pres. Roca & Ituzaingó, S2000 Rosario, Santa Fe, Argentina, Rosario, Santa Fe, Argentina.

USD65.875

Departamento
Compartir esta Propiedad

Descripción de la Propiedad

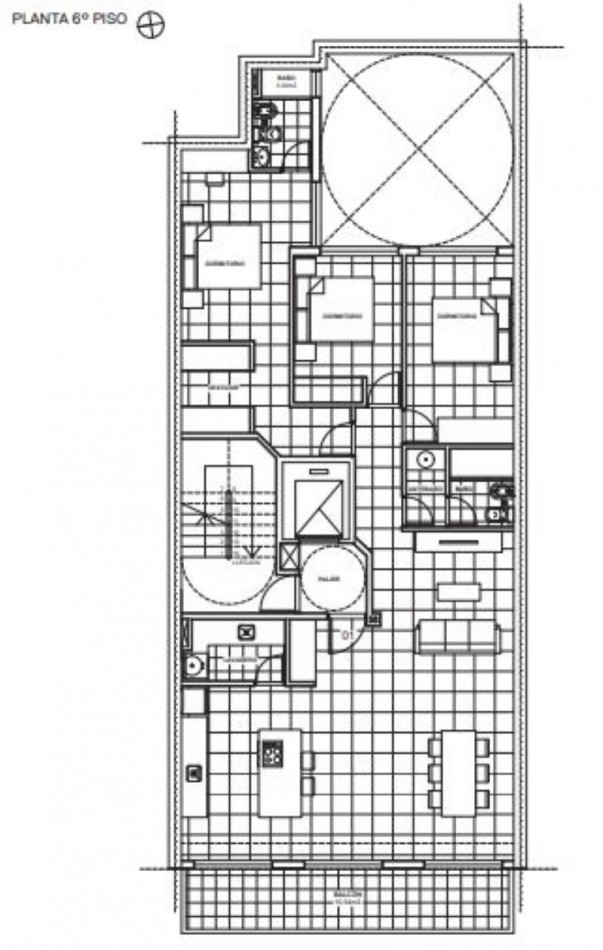
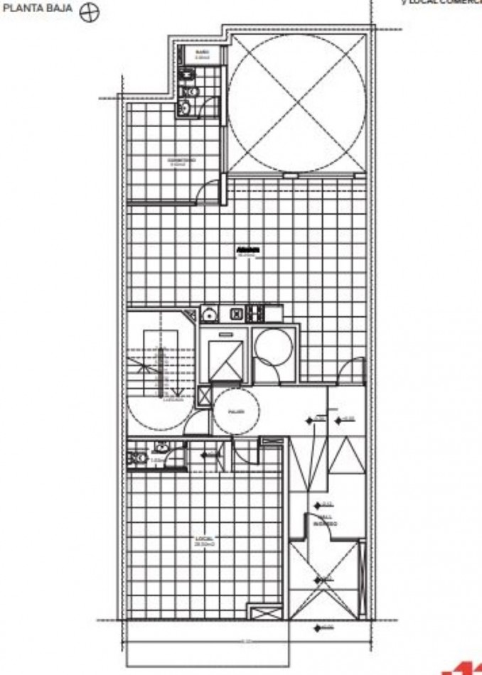
EDIFICIO DE PB Y 6 PISOS
3 UNIDADES POR PISO
LOCAL Y CONSULTORIO/OFICINA EN PB

ESPECIFICACIONES TÉCNICAS –

-Cielorrasos y paredes en yeso terminadas con pintura al látex.
- Aberturas de aluminio negro, Línea Modena.
- Pisos y revestimientos porcellanato de primera calidad.
- Puertas placa con herrajes de primera calidad.
- Placares con frentes corredizos enchapados en melanina y guías de aluminio.
- Muebles de cocina completos: bajo mesada y alacena en MDF enchapadas en melanina, mesada de granito, pileta de acero inoxidable y grifería monocomando de primera calidad.
– Unidades equipadas con termotanque eléctrico.
- Baños equipados con vanitory y receptáculo de ducha.
- Instalación de cañerías para televisión e internet.
- Hall de ingreso con excelentes terminaciones.
- Terminación exterior de ladrillo visto combinado con revoque.
- Ascensor con cabina de acero inoxidable, espejo, piso de granito, puertas automáticas de cabina y palieres

Mas detalles
  • En construcción
  • Balcon
  • Asfalto
  • Agua Corriente
  • Cloacas
  • Electricidad
  • Red Gas Natural
  • Internet / Wifi