En Venta
VENTA DEPARTAMENTO TRES DORMITORIOS CF CON BALCON MONTEVIDEO 900 POZO!!
Código: 99834

MONTEVIDEO 900, Rosario, Santa Fe, Argentina.

USD210.000

Departamento
Compartir esta Propiedad

Descripción de la Propiedad

EDIFICIO
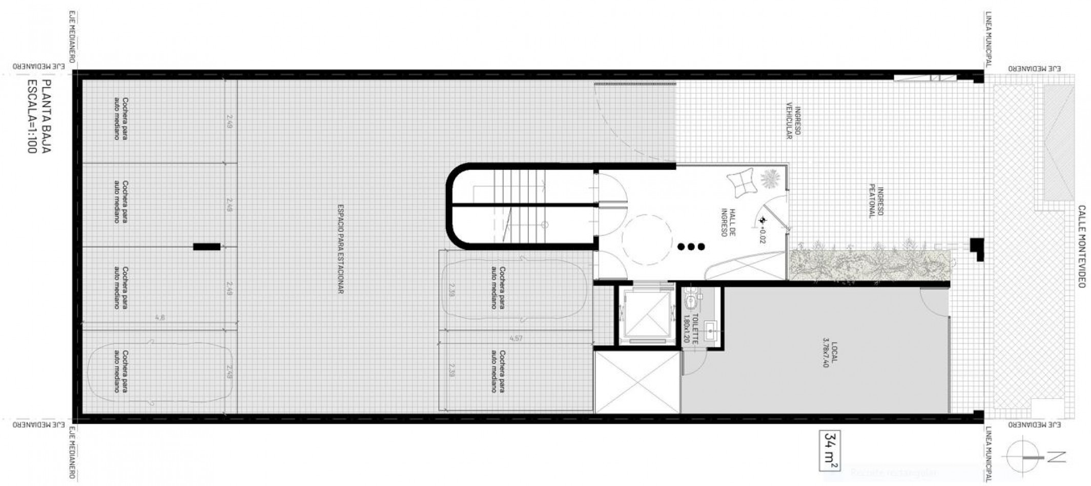
EDIFICIO DE PB Y 8 PISOS UBICADO EN CALLE MONTEVIDEO AL 900, EN PLENO BARRIO MARTIN.
SUBSUELO CON 10 OCHERAS
PLANTA PRIMER PISO, DOS UNIDADES DE UN DORMITORIO Y UNA DE DOS DORMIS CON CUARTO EN SUITE (VESTIDOR Y BAÑO) Y BALCON ATERRAZADO
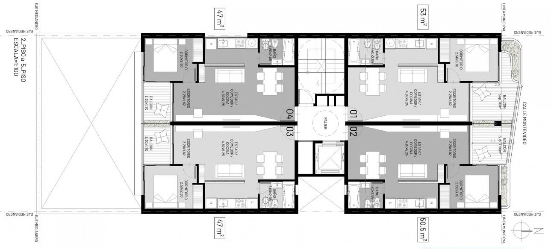
PLANTA SEGUNDO AL QUINTO PISO, CUATRO UNIDADES DE UN DORMITORIO
PLANTA SEXTO Y SEPTIMO PISO, DOS UNIDADES DE TRES DORMITORIOS
PLANTA OCTAVO PISO, DOS UNIDADES DE TRES DORMIS, Y UNA DE ELLAS CON TERRAZA DE USO EXCLUSIVO
UNIDADES
PUERTAS BLINDADAS
LLAVE MAGNETICA
ARQUITECTURA INNOVADORA Y DISEÑO VANGUARDISTA.
ÁREAS AMPLIAS Y FUNCIONALES
DETALLES MINIMALISTAS
AMPLIAS VENTANAS QUE PERMITEN LA ENTRADA DE ABUNDANTE LUZ NATURAL
DVH
AMENITIES PREMIUM
SECTOR GREEN ROOFTOP & SKYBAR
ESPACIO EN LA AZOTEA CON ENTORNO VERDE
BAR EXCLUSIVO CON VISTAS PANORÁMICAS DE LA CIUDAD
PISCINA
GIMNASIO EQUIPADO
BICICLETEROS
QUINCHO SEMICUBIERTO
LIVING
FOGONERO
BAULERAS
ESPACIOS VERDES
COCHERAS
ZONA SOLARIUM

DORMITORIO PPAL EN SUITE CON VESTIDOR Y BAÑO COMPLETO

Mas detalles
  • Pileta
  • Gimnasio
  • En construcción
  • Parrilla
  • Quincho
  • Terraza
  • Solarium
  • Asfalto
  • Agua Corriente
  • Cloacas
  • Electricidad
  • Red Gas Natural
  • Internet / Wifi
  • Ascensor
  • Llave magnetica
  • Puerta Blindada
  • Fogoneros
  • Parking para bicis
  • Espacios Verdes
  • Preinstalación para A/A