En Venta
VENTA DEPARTAMENTO DOS DORMITORIOS PRIMER PISO SAN JUAN Y PARAGUAY 50% Y 12 MESES AZ
Código: 140347

SAN JUAN Y PARAGUAY , Rosario, Santa Fe, Argentina.

USD119.000

Departamento
Compartir esta Propiedad

Descripción de la Propiedad

Ubicado en pleno centro de la ciudad en zona de comercios, gastronomía y bancos, con rápidos accesos a los puntos neurálgicos de Rosario.

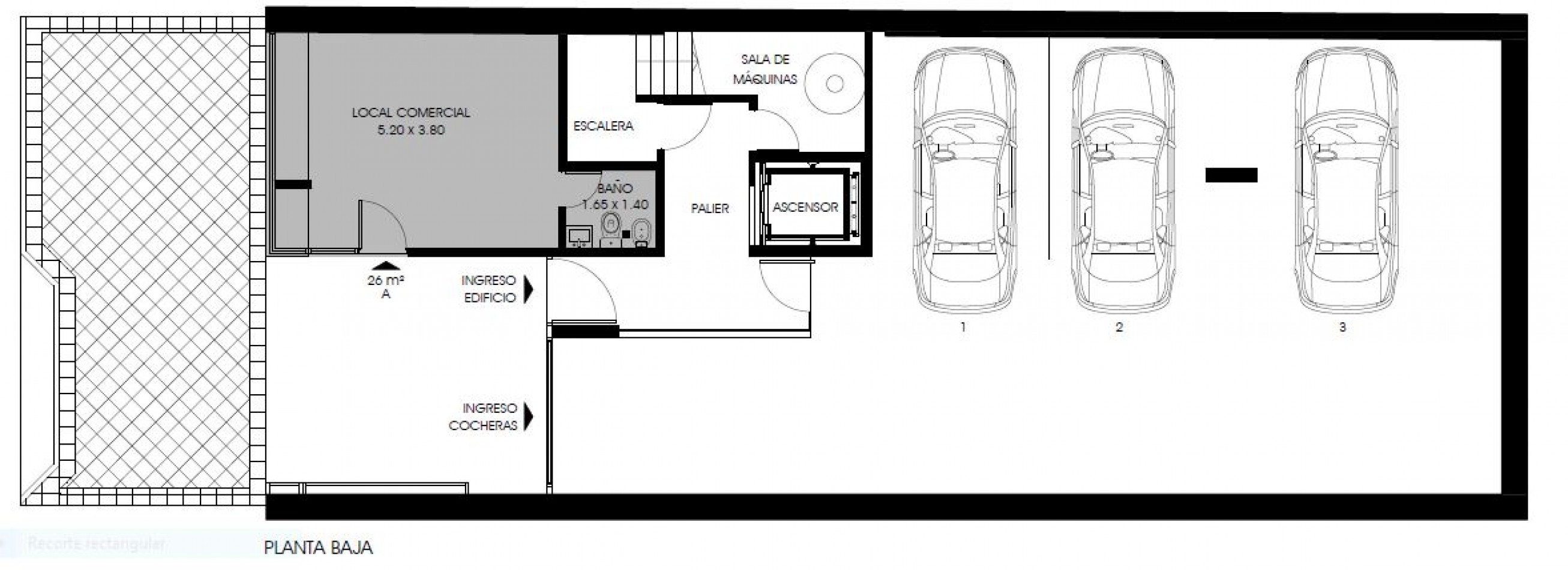
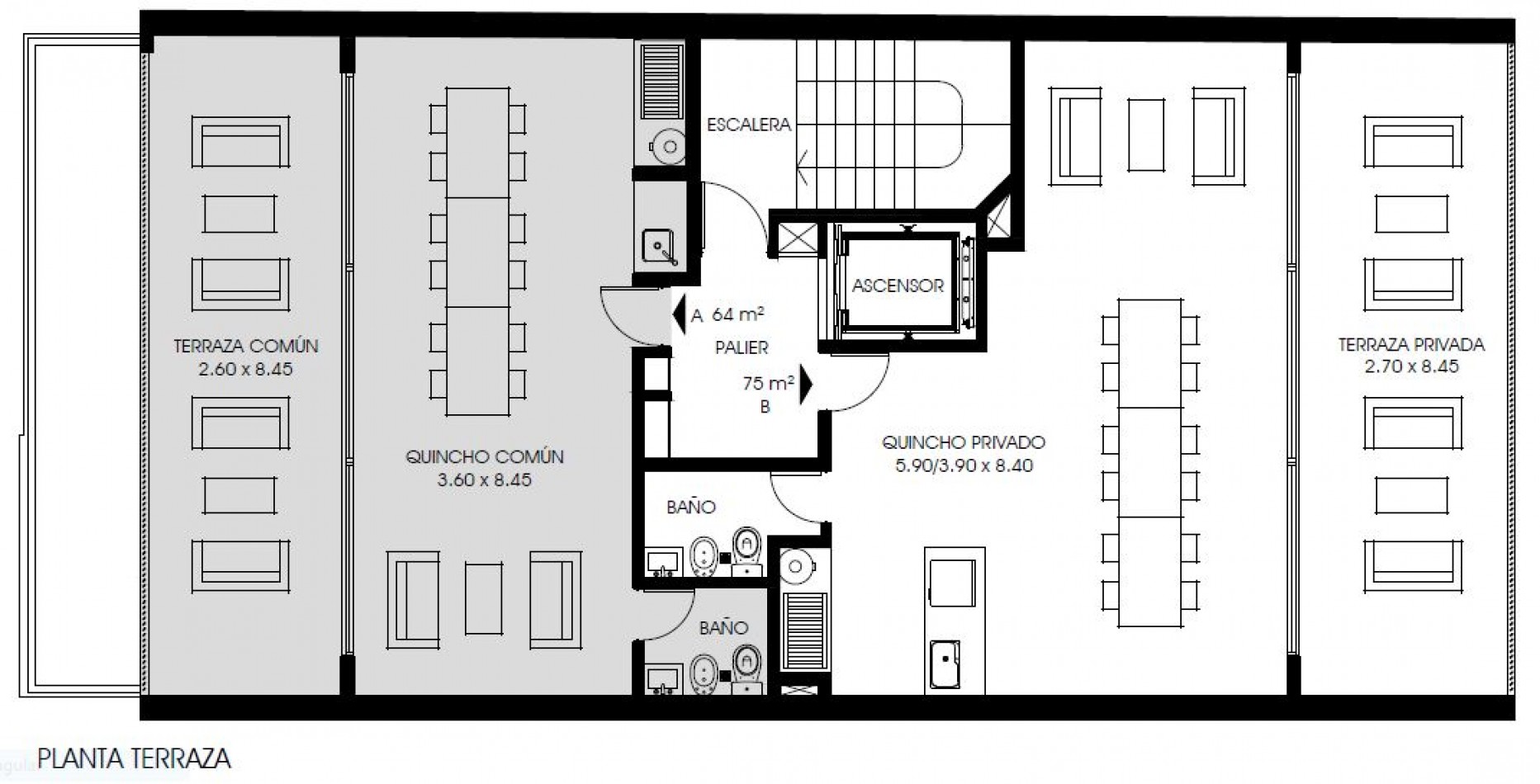
Edificio en construcción de planta baja, 8 pisos y terraza, compuesto por 4 departamentos por piso.

Cuenta con unidades de 1 dormitorio, monoambientes, oficinas adaptables a departamentos de dos dormitorios, un local comercial y espacio de cocheras y un quincho de uso común más otro de uso exclusivo en azotea.

Detalles constructivos
Placares con frente terminado.
Baños completos con espacio de ducha, vanitory y griferías FV o similar.
Pisos y paredes revestidos con cerámicos en baño, cocina y balcón.
Pisos, zócalos de madera flotante en estar comedor, dormitorios y pasos.
Paredes y cielorrasos enduídos en yeso.
Aberturas exteriores en aluminio con doble vidrio hermético, línea ALUAR o similar.
Mesadas de cocina de mármol y bacha de acero inoxidable con grifería FV o similar.
Alacenas y bajo mesadas en madera completamente instalados.
Cocina a gas y termotanque eléctrico instalados

Mas detalles
  • En construcción
  • Parrilla
  • Luminoso
  • Patio
  • Asfalto
  • Agua Corriente
  • Cloacas
  • Electricidad
  • Red Gas Natural
  • Internet / Wifi
  • Ascensor