En Venta
Venta Departamento Dos Dormitorios Frente Ituzaingo y Buenos Aires Amenities
Código: 78889

ITUZAINGO Y BUENOS AIRES , Rosario, Santa Fe, Argentina.

USD132.000

Departamento
Compartir esta Propiedad

Descripción de la Propiedad



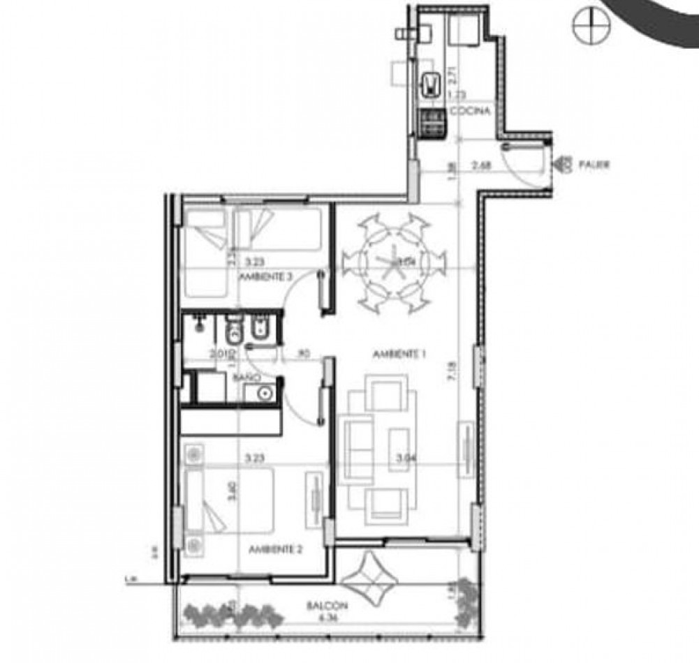
Edificio de 8 plantas con oficinas, departamentos loft, 1 dormitorio con comodín, 2 y 3 dormitorios. Ubicado sobre calle Ituzaingo entre Buenos Aires y Juan Manuel de Rosas.
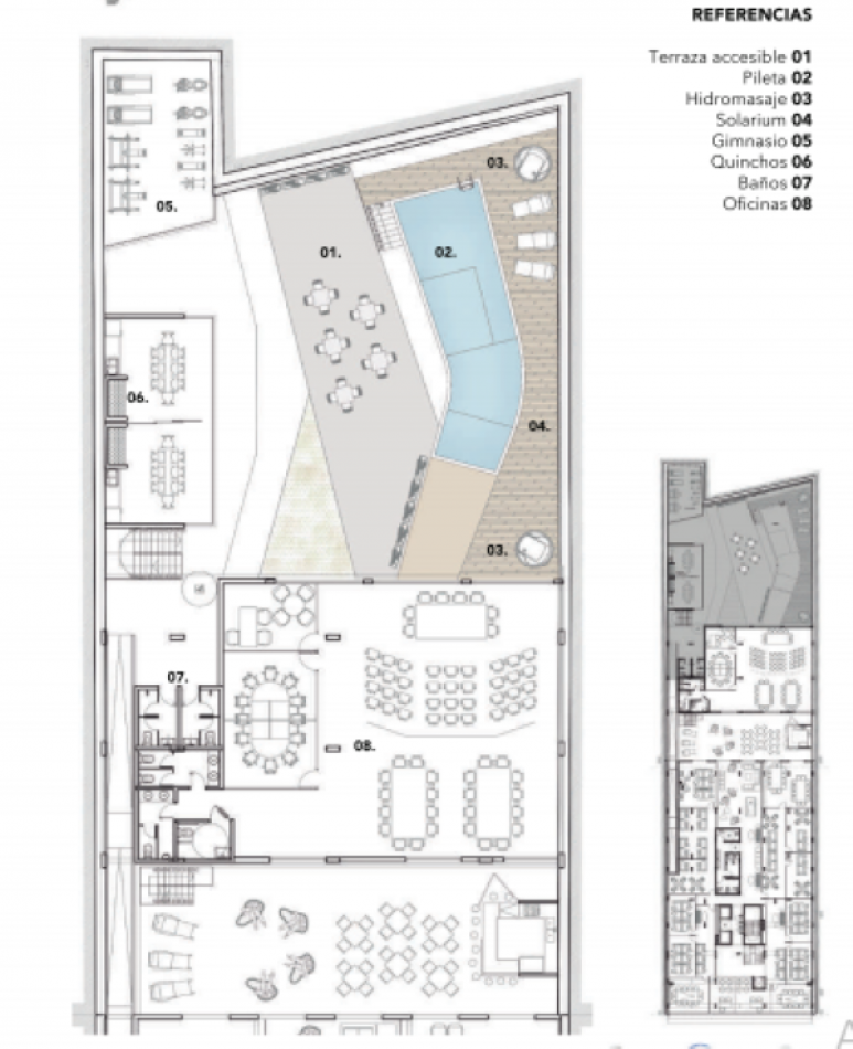
Moderno diseño arquitectónico que se desarrolla en 8 plantas (PB y 7 Pisos) Cocheras en Planta Baja y Piso 1, en piso 7 terraza con amenities Quinchos varios, Salon de eventos SUM, Parrilleros, Piscina, Gimnasio, Solarium, Orientación frente Sur.
El emprendimiento propone espacios muy luminosos y confortables, tanto para vivienda como para uso profesional, lo que da como resultado una excelente inversión. Optimizado con planes de Emergencias y evacuación. Sistema estable de iluminación de emergencia. Protocolo salida de emergencia ascensor. Porteros IP - WiFi. Clase A en acondicionamiento térmico. Reciclado de basura dentro de los departamentos. Nueva implementación de energía renovable.
Estructura independiente de hormigón armado. Mampostería exterior doble de hormigón con aislación hidráulica. Ascensores inteligentes. Portero electrónico. Pisos de porcelanato. Pisos flotantes melaminicos en dormitorios y estar comedor. Pisos y revestimientos cerámicos esmaltados en baños y cocinas. Portero electrónico. Pisos flotantes melaminicos en dormitorios y estar comedor.

Ambientes: Cocina con horno y calefón instalados. Equipamiento de cocina con bajo mesadas y alacenas. Mesada de granito. Artefactos sanitarios y grifería de primera línea. Conexión eléctrica y desagües embutidos para splits. Aberturas exteriores de aluminio. Puertas interiores de madera lustrada o laqueada. Frentes de placar enchapados en melamina al tono.

UNIDAD CON RADIADORES INSTALADOS Y CALDERA A GAS.

Mas detalles
  • Aire acondicionado
  • Pileta
  • Gimnasio
  • En construcción
  • Balcon
  • Parrilla
  • Calefacción Central / Piso Radiante / Radiadores
  • Luminoso
  • Quincho
  • Apto profesional
  • Comedor
  • Terraza
  • Solarium
  • Asfalto
  • Agua Corriente
  • Cloacas
  • Electricidad
  • Red Gas Natural
  • Cocina Amueblada
  • Internet / Wifi